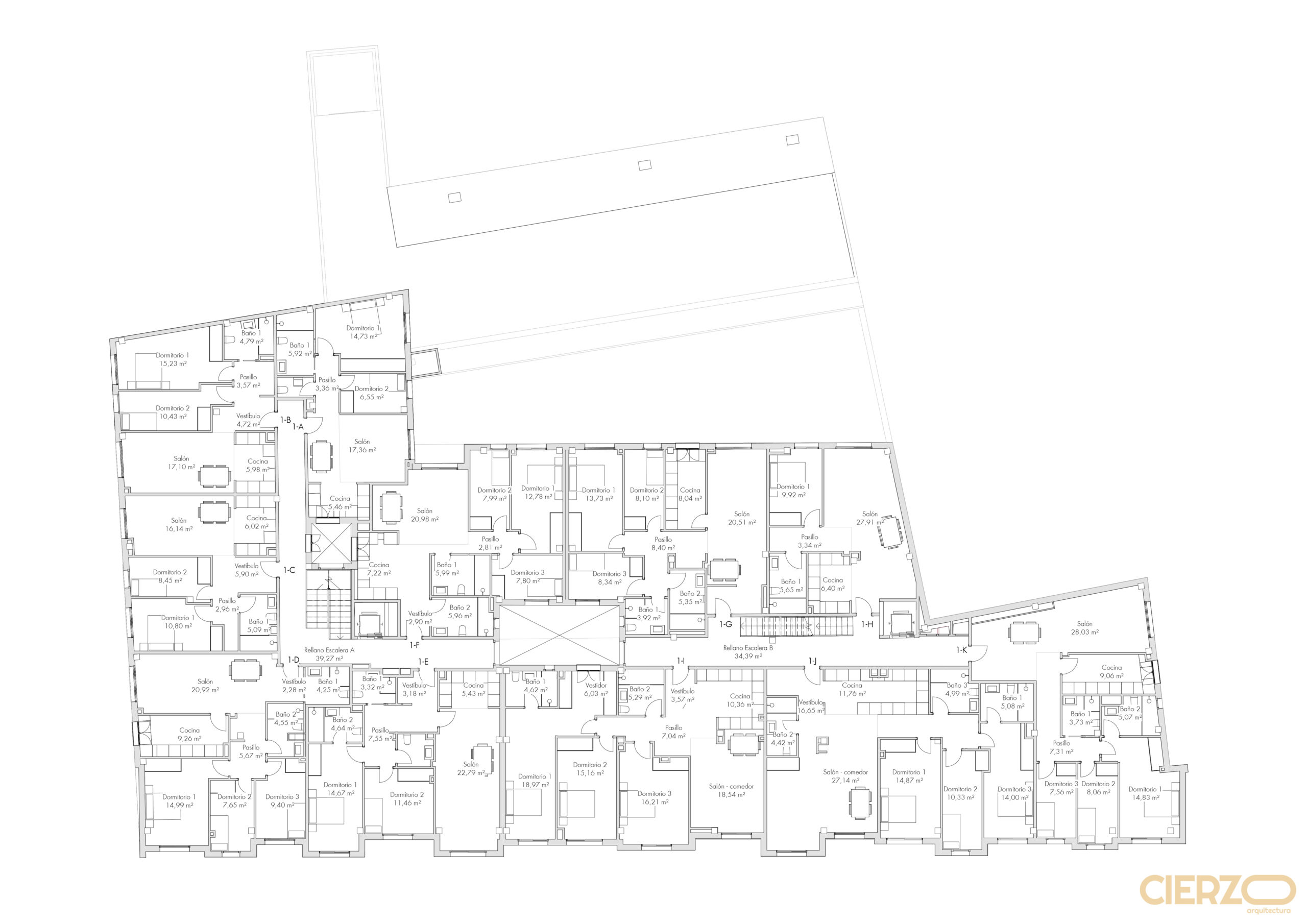
El proyecto aborda la finalización y adecuación de un edificio de vivienda colectiva en Soses, compuesto por un total de 64 viviendas, cuya construcción quedó inacabada y posteriormente vandalizada.
La intervención parte de un levantamiento preciso del estado actual mediante escaneado láser, generando un modelo tridimensional del edificio que permite trabajar con máxima fidelidad sobre la realidad construida. A partir de esta información se reconstruye la documentación gráfica y se desarrolla una nueva base de proyecto adaptada a las condiciones existentes.
Sobre este soporte se plantea la rehabilitación y actualización del edificio, adaptándolo a la normativa vigente en materia de accesibilidad, eficiencia energética y condiciones de habitabilidad. La actuación permite corregir las deficiencias del proyecto original y adecuarlo a los estándares actuales.
El uso de tecnologías de captura de realidad y modelado digital facilita un mayor control del proceso, reduce incertidumbres y permite tomar decisiones más precisas en una intervención de alta complejidad, transformando un edificio inacabado en una oportunidad para generar vivienda actualizada y eficiente.





